• Aktualności
    • Zarządzenia i decyzje Dziekana WMT
    • Kalendarium
  • Wydział
    • O wydziale
    • Kierownictwo WMT
    • Zarządzenia i decyzje Dziekana WMT
    • Struktura WMT
    • Pracownicy
    • Polityka Jakości Kształcenia WMT
    • Rzecznicy Zaufania
    • Postępowania dot. stopni naukowych
    • Kariera i praca
    • Galeria zdjęć
    • Zamówienia publiczne
    • Pliki do pobrania
  • Kandydaci
    • Aktualności rekrutacyjne
    • Rekrutacja na studia rozpoczynające się w roku akademickim 2025-26
    • Pełna oferta studiów - WMT PW
    • Szkolenia dla studentów 1 roku
    • Stypendia
    • Gmachy WMT
    • Organizacje studenckie
    • Domy studenckie
    • Foreign canditates
  • Studenci
    • Aktualności
    • Dziekanat ds. Studenckich i International Office
    • Dziekanat ds. Nauczania
    • Opiekunowie kierunków studiów w kadencji 2024-2028
    • Studencki Rzecznik Zaufania
    • Oferta prac dyplomowych i przejściowych
    • Praktyki studenckie
    • Ubezpieczenia i opieka medyczna
    • Studenci z niepełnosprawnością
    • Samorząd studentów
    • Koła naukowe
    • Organizacje studenckie
    • Erasmus+
    • Absolwenci
    • e-mail / WiFi / Software
  • Studia
    • Terminarz sesji egzaminacyjnej
    • Harmonogram roku akademickiego
    • Warunki zaliczenia semestru
    • Dyplomowanie
    • Plany modelowe studiów
    • Wybory specjalności rozpoczynających się w roku akademickim 2025/2026
    • Wznowienia
    • Studia podyplomowe
    • Dokumenty do pobrania
  • Doktoranci
    • Doktorancki Rzecznik Zaufania
    • Aktualności
    • Otwarcie/zamkniecie przewodu
    • Potencjalni Promotorzy prac doktorskich WMT
    • Szkoła Doktorska
    • Doktoraty eksternistyczne
    • Oprogramowania dla pracowników, doktorantów i studentów PW
  • Nauka i rozwój
    • RND Inżynieria Mechaniczna
    • Wykaz czasopism naukowych
    • Projekty finansowane z Funduszy UE
    • Oferty instytutów
    • Konkursy i granty
    • Badania naukowe
  • Sympozja
    • Konferencja FiMM
    • VII Mazowieckie Sympozjum Spawalnicze
    • II Mazowieckie Sympozjum Obróbki Skrawaniem
    • VI Mazowieckie Sympozjum Spawalnicze
    • I Mazowieckie Sympozjum Obróbki Skrawaniem
    • Symposium Industry 4.0
  • Kontakt
    • Adres WMT
    • Biuro Dziekana WMT
    • INTERNATIONAL OFFICE
    • Dziekanat ds. Nauczania
    • Dziekanat ds. Studenckich
    • Rzecznicy Zaufania
    • Biblioteka Terenu Południowego
    • Zamówienia publiczne
    • Kierownik Administracyjno-Gospodarczy
    • Kontakt na portiernie
    • Redakcja Strony WMT
    • Dojazd
  • Szukaj
EN

Wydział Mechaniczny Technologiczny

Politechnika Warszawska

zamówienia

  • zamówienia - strona startowa

Media » zamówienia » 2019 » 9/2019/wip-wip »

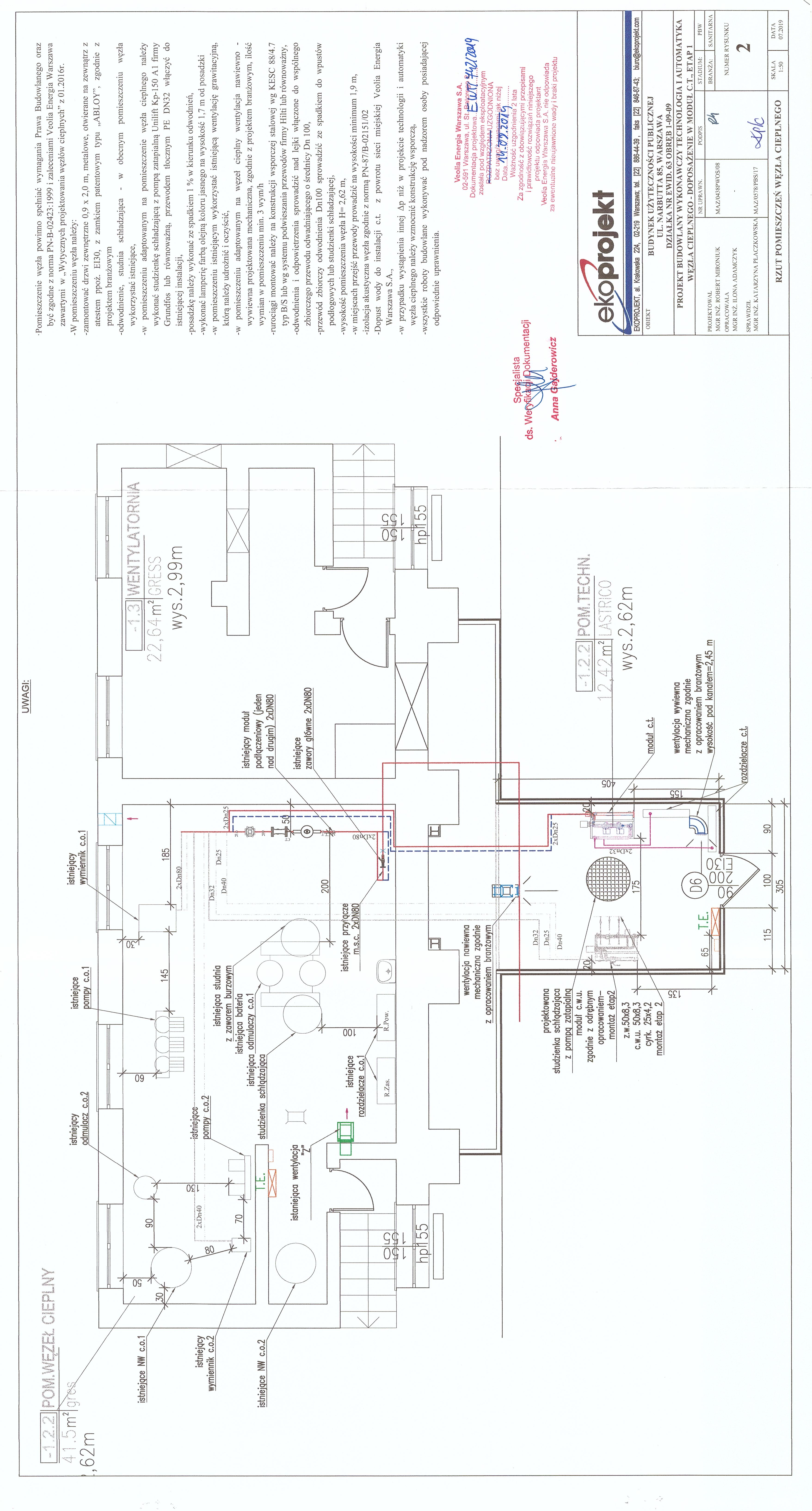
rzut 1

Pobierz plik (jpg, 1,67 MB)

Kanały RSS

PW na Facebook

PW na Twitterze

PW na Instagramie

PW na YouTube

PW na Snapchat

Blog PW

Biuletyn PW

Platforma Ekspertów

PW na Pinterest

PW na LinkedIn

Baza Wiedzy PW

© 1998-2025
Politechnika Warszawska,
Pl. Politechniki 1,
00-661 Warszawa

Deklaracja
Dostępności
Godło Polski